University labs double as K-12 learning environments
The cliché of science as the domain of eccentric geniuses was long reinforced by facility design. Combination lab/offices functioned as enclosed fiefdoms, separating researchers from each other and hiding them from public view. Traditional teaching labs put the focus on faculty but were seldom conducive to group work.
During the past two decades this territorial model has been shattered, as building owners—and many researchers and teachers—have come to acknowledge the value of collaborative science. Most modern S+T buildings feature open, generic, freely assignable research space, with enclosed rooms reserved for hazardous or environmentally sensitive functions. Offices have been pulled out of research labs; atriums and breakout zones encourage chance meetings. Flexible teaching labs support team projects, with faculty serving as “guide on the side” rather than “sage on the stage.”
Meanwhile, K-12 science education has also undergone a sea change. In 1990, the American Association for the Advancement of Science published “Science for All Americans: Project 2061.” This report, which influenced national and state core curricula, pushed better integration of science, technology, engineering, and math (STEM). Concerned about finding qualified workers, private industry supported the movement, as did federal programs emphasizing national competitiveness. NASA, the National Science Foundation, and the nonprofit Project Lead the Way offered resources for better K-12 STEM instruction. Project Kaleidoscope, a public/private initiative, explored related issues in facility design.
6 design ideas for multigenerational education
S&T facilities not your forte? Here are some principles that can make higher-ed buildings more appealing and useful to younger students, regardless of academic function:
1. Integration vs. isolation. Post-secondary institutions, faculty, students, and K-12 teachers may not always agree on how much mingling is desirable. Space created for heavy use by K-12 learners may benefit from designated restrooms and circulation paths, but overly strict isolation will defeat the intergenerational purpose. Successful outreach programs strike a balance.
2. Access and orientation. Hosting K-12 groups on a regular basis requires careful attention to staging. Think through drop-off points, entryways, and gathering zones, where students and teachers can regroup before moving to their primary destination. Can your lobby handle 30 restless fourth graders without annoying regular users? Are the relevant corridors easy to navigate?
3. Transparency. Glazing, especially in atriums and lobbies, is a boon to visitor-friendly buildings. If interesting functions have to remain off-limits, can you put them on display with interior windows? How about views from outside the building? (Some users may fear the fishbowl effect; have candid discussions before proceeding.)
4. Advanced AV. Distance learning infrastructure leverages faculty expertise, reinforcing a college’s brand as an exporter of quality content while giving its own students access to outside resources. Ample wireless connectivity untethers distance learning from the classroom.
5. Acoustics. School groups can sometimes be loud. A generous lobby with flexible seating may offer bang for your outreach buck, but pay careful attention to the mix of hard vs. soft finishes to avoid amplifying noise.
6. Displays. Today’s learners have grown up with multimedia. Consider the relative merits of static graphics, 3D art and artifacts, and interactive displays. Can the floor or ceiling help tell your story? Depending on your school’s culture and objectives, museums may offer inspiration.
Given these complementary trends, it’s not surprising that post-secondary schools already in the science-teaching business are finding common cause with their elementary and secondary counterparts. Many colleges and universities see a distinct recruiting advantage in opening their facilities to local schools. Some are beginning to view S+T buildings more like a library or museum: a community resource shared with younger students, non-majors, and the general public. Facility design is responding to the new mindset.
“Our facility is a centerpiece for both the campus and the community,” says Liesl Jones, PhD, Chair of the Department of Biological Sciences at Lehman College in the Bronx, N.Y. Science Hall, opened early last year, incorporates features that serve the borough’s K-12 schools as well as Lehman students.
“This building shows the entire community that the college is serious about science education, not only at the college and graduate level but also for K-12 outreach,” says Jones. “It brings everything into a new perspective for the kids.”
Lively Town Center, lab ‘pods’ make science accessible in Wisconsin
The Wisconsin Alumni Research Foundation had outreach in mind when creating the Wisconsin Institutes for Discovery, a 330,000-sf building on the UW-Madison campus. The $175 million facility, focused on biology, IT, and engineering, houses two research institutes: the public Wisconsin Institute of Discovery and the private Morgridge Institute for Research. It opened in late 2010 and has since become a hub for local, regional, and statewide K-12 STEM activities, as well as public events for adults.
“The whole idea behind a true 21st-century research facility is that there is an outreach component embedded in the model,” says George Austin, who was WARF’s project manager for the building and now runs AVA Civic Enterprises, a Madison consultancy. “Our donors thought it was important, and it’s something that could have been lost if we had taken a traditional approach to planning.”
About a third of the building’s assignable square footage consists of the Town Center, which takes up the entire main floor and has street-level entrances on all sides. The H.F. DeLuca Forum, a circular, flat-floor auditorium with movable seating, occupies the center of the space. It is flanked by a sophisticated distance learning center, several breakout rooms, two restaurants, a Mesozoic garden, and interactive artwork, including a water wall with lights and chimes based on the Fibonacci sequence.
Flexible general seating is complemented by AV infrastructure, giving the space a functional capacity of 1,200. When the forum’s retractable walls are opened, overflow crowds can see and hear presentations courtesy of extra screens and speakers.
The Wisconsin Science Festival, inaugurated in 2011, is the Town Center’s signature event. This four-day fest encompasses children’s activities plus performances and lectures for adults. Last year, it expanded to a statewide endeavor attracting nearly 19,000 participants—some 5,000 of them in Madison. Such large numbers would not have been feasible without the WID. “There is a global science festival movement now,” says Laura Heisler, Director of Programming for WARF. “This was an event that was waiting for something like this building to come along and make it happen.”
The Wisconsin Science Festival, inaugurated in 2010, has grown to a statewide endeavor. The Town Center of the Wisconsin Institutes for Discovery building offers ample room for displays and activities, from traditional lectures to hands-on demonstrations and experiments.
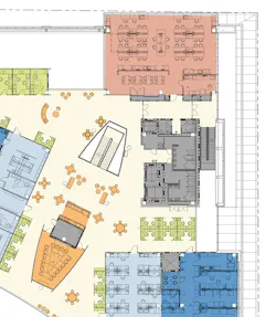
The three lab floors above the Town Center are also thoughtfully planned for outreach. Each of the two research institutes has its own wet lab/support “pod” on every floor, with shared dry lab and support space at the building’s core. A teaching lab for K-12 groups, with dedicated restrooms and elevators, is provided on the northeast corner of each floor. Students are separated from the resident researchers but have good views into the pros’ workspace via generous interior glazing. In all, the WID has about 20,000 sf of teaching labs, each with a 40-student capacity.
Some field trip modules use the labs for materials science, cellular biology, or dissection; others take advantage of the Mesozoic garden, fossil-inlaid floor, and Fibonacci wall downstairs. Students also have access to cutting-edge instrumentation on loan from major manufacturers, which is shared with the research staff. Rather than squirreling the instruments away in a core facility, this placement fosters interaction. “We have a reservation system so the researchers can use it even while the teaching is going on in those labs,” says Heisler. “The researchers will talk to the students about what they are doing.”
The Town Center at the Wisconsin Institutes for Discovery is accessible at the street level from all four sides. The main circular forum is augmented by breakout rooms and a distance learning facility (orange), plus restaurants (blue).
A partial WID floor plan shows the northeast corner of a typical lab floor, including the K-12 teaching lab (orange), dedicated rest rooms and vertical circulation (gray), and professional research labs (blue).
Heisler has a staff of 10 FTE employees to manage programming (http://discovery.wisc.edu/town-center/). “Last year, more than 6,500 kids came here on field trips, some from as far away as Chicago,” she says. “Now that this piece is running smoothly, we want to start some after-school programs, studying things like proteomics and software modeling.” Also in the planning stages: more outreach to disadvantaged high school and middle school students, a program for talented and gifted children, and a week-long science day camp for urban students.
Emphasizing visual connections produces a rich intergenerational experience, according to architect Craig Spangler, AIA, Principal, Ballinger (www.ballinger-ae.com). “From the Town Center, you can see the teaching labs stacked on top of one another. Once you’re up there, you can see back down into the Town Center and visually connect to the research pods. Everyone thought it was very important to have that visual connection, but control all access.”
Rethinking labs to accommodate learners
With its mall-like main floor, the WID was designed as a groundbreaking space. Lehman College’s new $70 million Science Hall illustrates a less grand—but carefully considered—approach to serving K-12 STEM students in the Bronx and beyond (www.lehman.edu/new-science-building/k12-enrichment.php). The LEED Gold building supports undergrad- and graduate-level research and teaching as well as three major outreach programs:
• College Now, which pulls high schoolers into the college environment for AP credit in biology, chemistry, and geographic information science. Last summer, 67 students from 27 New York City public high schools took part.
• Women in Science, drawing high school juniors and seniors for an eight-week summer seminar, research, and mentoring experience.
• The Bronx Sci Fest, a borough-wide program that feeds into the Intel-affiliated New York City Science and Engineering Fair.
Women in Science and the Bronx Sci Fest are both new initiatives made possible by Science Hall, a state-funded project that replaced 1950s-era science facilities. The 70,000-sf building defines a courtyard with wetland plantings that filter stormwater, graywater, and rainwater, making it useful for environmental studies as well as informal gatherings. An entry lobby includes bench seating for 20 students and provides handy space for initial orientations. The science building next door has a functional 400-seat auditorium, so a more compact, flexible presentation room was created in Science Hall—useful program space for the Sci Fest.
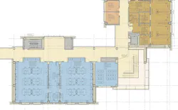
The teaching labs in Lehman College’s Science Hall facilitate group work and are equipped with large monitors. Wet services are kept at the perimeter to make the central tables as versatile as possible, with generous unobstructed work surfaces.
The teaching labs (blue) are paired with a classroom-style prep zone, offering a versatile grouping of spaces to accommodate both college students and younger learners. Nearby, a hallway bump-out has bench seating for breaks. Faculty research labs (bronze) occupy an adjacent wing, with a shared open staircase providing primary vertical circulation.
Teaching labs on each floor are set up for group work, with obstruction-free benches, large computer monitors, ample cubbies for coats and bags, and adjacent classroom-style lab/lecture rooms. Hallways are widened with bump-outs overlooking the courtyard, including bench seating where students can chat during breaks.
Project architect Tony Alfieri, Associate Principal at Perkins+Will (www.perkinswill.com), says the lab/lecture room configuration is useful for serving K-12 groups as well as college students. “You can give an overview in a structured format, and then go into the lab next door, which may be a more free, less structured environment. The lab, the prep room, the hallway: it’s all part of an ecology of learning. This model was not accommodated in the existing building.”
Distance learning infrastructure—a hallmark of buildings designed for STEM outreach—is provided in the prep rooms as well as the teaching labs. “If local high school professors want to bring in a module being carried out by Lehman faculty, they can do it,” Alfieri says. “This was not possible in the prior facility and is a totally new initiative.”
Faculty research labs occupy their own wing of the L-shaped building, meeting the teaching labs at a daylit corner stairwell. They are separated from the teaching labs but easily accessible for cooperative programs. “Students could be taking Intro to Biology right down the hall from someone doing advanced research,” says Alfieri. “Lehman’s theme for the building is ‘Gateway to the Sciences,’ and they mean that expansively.” (HERA was the lab consultant on the project, which was built by Gilbane.)
According to Lehman’s Liesl Jones, the design’s overall quality is a deliberate effort to get the borough’s children and young adults excited about science, and, by extension, excited about Lehman College. “This building allows us to bring kids into a state-of-the-art environment with a different experience in the lab,” she says. “Our older labs were individual labs with closed doors. Some of the kids will have experience in real research labs now, as well as working in the teaching part of the facility. Students can really see what research looks like; we now look the same as a Tier 1 research institute.”
Museum-style displays introduce geosciences
The most prominent design feature of Marquez Hall, a new 64,000-sf lab building at the Colorado School of Mines, Golden, is a cantilevered canopy thrusting 60 feet over the west entrance. The dramatic outward gesture is appropriate for the $27 million research and teaching facility, which seeks to make connections beyond its Petroleum Engineering Department students.
Marquez forms a quad with the adjacent Center for Technology and Learning Media, creating a new gateway for the south campus. “There will be thousands of people moving through the courtyard because of where the building sits,” says David Houston, AIA, Senior Associate at Anderson Mason Dale, the architect of record (www.amdarchitects.com). The Building Team also included design architect and lab consultant Bohlin Cywinski Jackson (www.bcj.com) and contractor Adolfson & Peterson Construction (www.a-p.com).
At Marquez Hall at the Colorado School of Mines, interior glazing and low seating invite visitors to observe activity in the drilling simulation lab. Like multiple features of Marquez Hall, the west lobby was sponsored by private industry.
Marquez Hall provides research and teaching labs for studies relevant to the petroleum industry and geosciences. (An additional 23,000 sf of general classroom space was bolted onto the southeast corner after the project was under way, guaranteeing a mixed group of users.) It opens new horizons for the school’s K-12 outreach, including field trips and summer camps, as well as its Teacher Enhancement Program (http://te.csmspace.com and http://students.csmspace.com).
The museumlike west lobby is central to this effort, aiming to intrigue school groups as well as non-majors and the general public. The glass curtain wall admits ample light and puts science on display. “What we do as petroleum engineers is generally misunderstood,” says Professor Ramona Graves, PhD, Dean of the College of Earth Resource Science and Engineering. “A lot of our galleries and lobbies are designed to educate.”
Displays funded by private companies suggest that the field offers exciting job opportunities. For instance, a large interior window, below the inscription “Harold M. and Patricia M. Korell and Southwestern Energy Lobby,” showcases a well-equipped drilling simulator lab. Low, movable seating invites visitors to spend time observing the college students inside, gaining a feel for life on a rig. Half a dozen colorful 10-foot panels interpret the history of the petroleum industry. A 16-foot cylinder filled with oversized glass spheres, tinted oil, and water illustrates the fluid dynamics of petroleum reservoirs.
Nearby, the ConocoPhillips Gallery combines courtyard views with graphics and interactive digital displays. Information about the industry and related sciences is combined with explanations of the sustainable features that helped Marquez score LEED Silver.
Buildings like Marquez Hall, Science Hall, and the Wisconsin Institutes for Discovery challenge the notion that science is a rarefied endeavor. “The whole idea is that researchers should not be walled off into a separate enclave,” says Perkins+Will’s Alfieri. “Traditionally, science was reserved only for certain adept people, but great discoveries are not limited to the few. Lehman College’s attitude is that opening up to children, to more women, to people of color, and to a broader world will ultimately result in better ideas.”







