Another new industrial facility breaks ground in hottest market for this sector
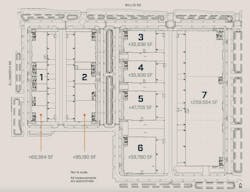
Scottsdale, Ariz.-based Martens Development recently broke ground on The Brickyards on Ellsworth, an eight-building, 909,553-sf Class A industrial facility development in Mesa.
A construction team led by FCL Builders will deliver move-in-ready spaces for what is one of the more active industrial submarkets in the U.S. Ware Malcomb designed the buildings that will range in size from 35,000 to 250,000 sf. The building team includes Hunter Engineering and TLCP (SE), and Peterson Associates (MEP). CBRE is managing the leasing.
Martens has been developing projects in Mesa for eight years, according to its Principal David Martens. “A lot of businesses are coming from California, Oregon, Washington, Utah … because we have a friendly business environment.” One of the developer’s recent projects is The Landing, a 10-building complex that was completed in 2022.
Phoenix leads in industrial facility building
According to CommercialEdge data, Phoenix is the most active industrial construction market in the country, with 42.7 million sf underway, representing 11.1 percent of that market’s stock. As of the third quarter of 2023, more than 15 million sf of industrial space were under construction in Southeast Mesa, according to reporting by the Phoenix Business Journal.
The 63-acre Brickyards on Ellsworth, with an estimated price tag of $153.6 million, is located near the Phoenix-Mesa Gateway Airport within the Pecos Advanced Manufacturing Zone and near the SRP 69kV transmission line. That proximity ensures ample available power to tenants, according to city officials. The development is also in a designated Foreign Trading Zone that reduces or defers tariffs and duties on products produced in the zone, and could also reduce qualified users’ property taxes.
The Brickyards on Ellsworth will offer a mix of specification and build-to-suit options, with each building featuring about 10 percent office space. When The Brickyards on Ellsworth is completed in the summer of 2025, Martens Development’s industrial portfolio will exceed 5 million sf. (While the eighth building in the Brickyards on Ellsworth complex is planned, there’s no timeline yet on when it will be started.)

